Chalet Independiente en venta en Jávea/Xàbia, Alicante

Ref. 1789 399 m2 5 6 1
venta: 1.750.000 
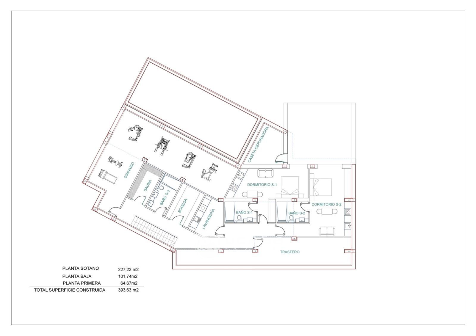
¡Disfrute de una vida llena de lujo y confort con esta fabulosa villa moderna en Jávea! Este impresionante proyecto de construcción de villa moderna ofrece vistas panorámicas al mar y al Montgó en un entorno natural envidiable y a solo unos minutos de la playa de El Arenal, colegios internacionales, supermercados y el prestigioso Club de Golf de Jávea.   La vivienda compuesta de 3 plantas será construida con los más altos estándares de calidad, utilizando los mejores materiales y las últimas tecnologías para su comodidad. Disfrutará de interiores luminosos y elegantes, que se abren a amplias terrazas y una hermosa piscina infinita. Cada planta está diseñada para aprovechar al máximo las impresionantes vistas y la vida mediterránea. La planta baja consta de un gran salón-comedor y una espaciosa cocina abierta totalmente equipada con acceso a la terraza y a la piscina y vistas abiertas al Montgó y al mar. También dispone de una despensa, un aseo de invitados así como de un dormitorio con su propio baño y acceso a la terraza y piscina. La primera planta dispone de dos dormitorios cada uno con su propio baño, beneficiándose el más amplio de un vestidor. Ambas habitaciones tienen acceso a una terraza donde podrá disfrutar de las vistas panorámicas del entorno y de hermosas puestas de sol sobre el Montgó. En el sótano hay un apartamento separado con entrada independiente, ideal para sus invitados. La villa también incluye una cochera para 2 coches, así como un jardín mediterráneo de fácil mantenimiento y dispone de : aerotermia calefacción por suelo radiante aire acondicionado por conductos sistema domótico armarios empotrados en todas la habitaciones sistema de osmosis y electrodomésticos Bosch en la cocina estores semitransparentes en la cocina y el salón y blackout en los dormitorios riego automático en el jardín Jávea es conocida por su impresionante naturaleza, aguas cristalinas y su delicioso clima mediterráneo. Con su encantador casco antiguo, excelentes restaurantes y numerosas oportunidades recreativas, es el lugar ideal para quienes buscan un estilo de vida lujoso en España, a tan sólo una hora de los aeropuertos de Alicante y Valencia. No pierda esta oportunidad de disfrutar de una vida de lujo en Jávea y póngase en contacto con nosotros para organizar su visita.

Índice de alquiler

Construidos 399 m2
Parcela 1.010 m2
Precio/m² 4.386
Dormitorios 5
Baños 6
Garajes 1
Piscina privada
Calificación Energética En trámite

Calculadora de Hipotecas:

%
años

Inmuebles similares:

 
 450 m2  3  4
Chalet Independiente en venta en Benissa, con 450 m2, 3 habitaciones y 4 baños, Piscina, Garaje y Ascensor.
1.595.000 €
 
 154 m2  4  4
Chalet Independiente en venta en Jávea/Xàbia, con 154 m2, 4 habitaciones y 4 baños, Piscina, Garaje y Amueblado.
1.695.000 €
Contacta con tu asesor
Sandra Góra
Solicita información

Si deseas más información sobre esta propiedad, por favor, rellena el formulario:

Contacto
Costa Royal Nieruchomosci
San Francisco de Borja 25
46702 – Gandía

oficina@tucasaespana.eu
Síguenos en:
RAICV 3677