OBRA NUEVA VIVIENDA DE 1 DORMITORIO EN EL CENTRO. ENTREGA 2026

Gandia

Ref. 1830 51 m2 1 1
venta: 155.000 


¡Descubre tu nuevo hogar en el corazón histórico de Gandía! Presentamos el “EDIFICIO SAN JOSEP” compuesto por tres viviendas: Planta baja, 1º planta y 2º Planta. Estas exclusivas viviendas de alto standing, una obra nueva que captura el encanto mediterráneo en cada rincón.

Con una ubicación privilegiada, podrás disfrutar de la comodidad de tener todo al alcance de la mano, sin necesidad de coche. Estas viviendas exteriores, de diseño vanguardista y eficiente, ofrecen luz natural en todos sus espacios, creando un ambiente acogedor y lleno de vida.

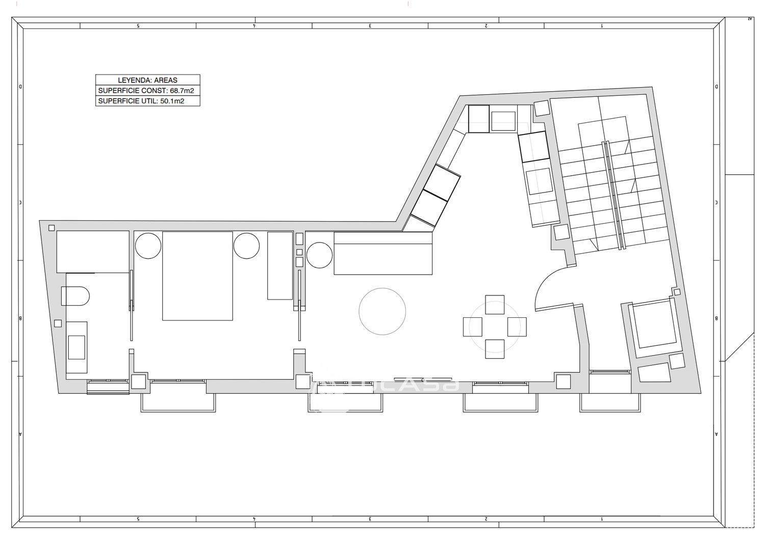
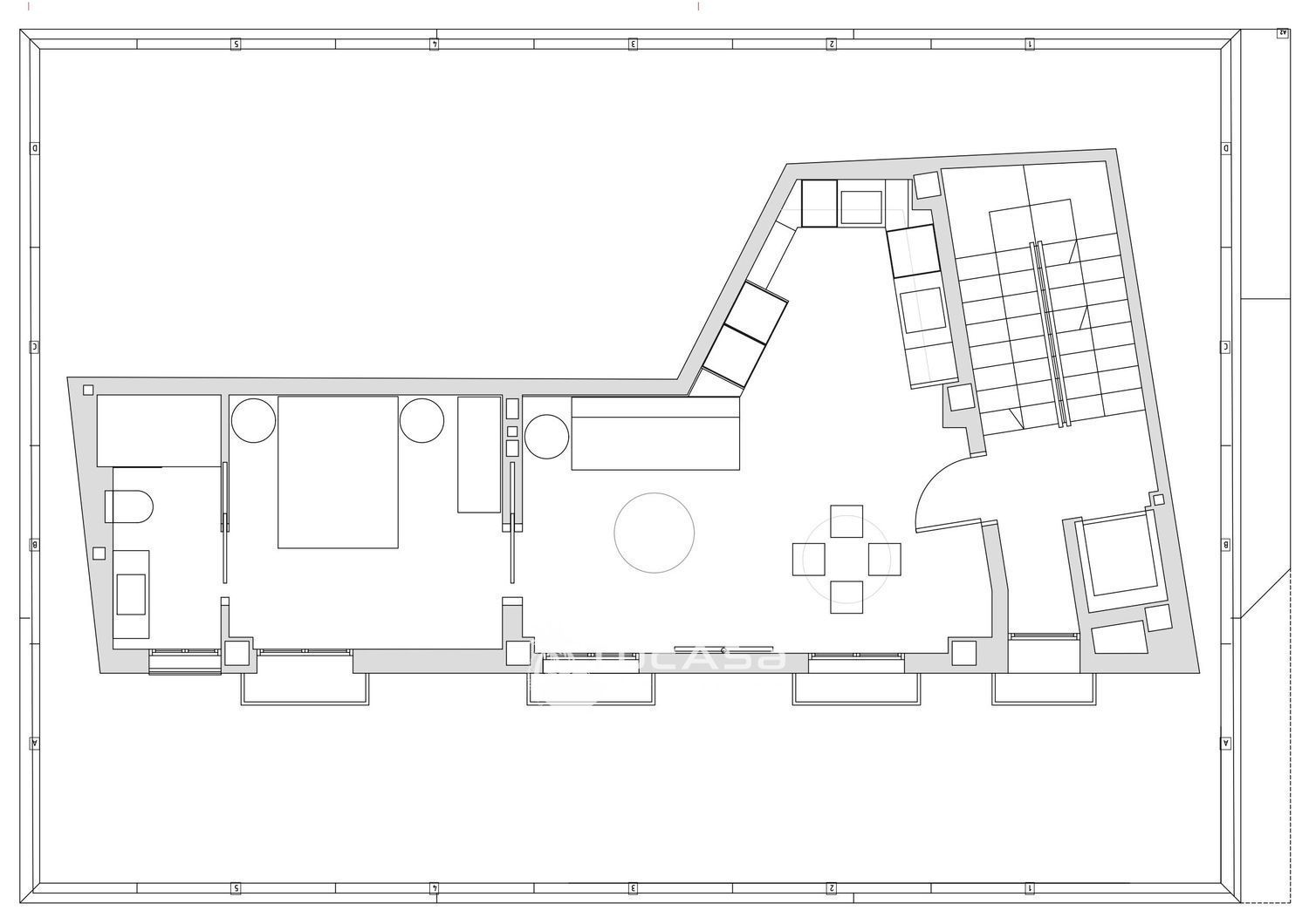
Cada vivienda cuenta con 51 m² construidos, distribuidos en un dormitorio y un baño, ideales para quienes buscan confort y modernidad. La cocina abierta hacia el salón es perfecta para compartir momentos inolvidables. Además, la preinstalación de aire acondicionado por conductos asegura que siempre estarás a la temperatura ideal. No te pierdas la terraza común, un espacio pensado para relajarte y disfrutar del clima mediterráneo.

Con una calificación energética A tanto en consumo de energía como en emisiones de CO2, estas viviendas no solo son un lujo para vivir, sino también una opción sostenible para el futuro además de una inversión de VALOR. Ven a conocer tu nuevo hogar y déjate seducir por el estilo y la calidad de vida que ofrece esta joya en Gandía. ¡No esperes más para hacer realidad tus sueños!


Índice de alquiler

Precio Venta 155.000 €
Precio/m² 3.039
Año de construcción 2026
Construidos 51 m2
Dormitorios 1
Baños 1
Cocina Amueblada
Carp. Exterior PVC
Carp. Interior madera lacada en blanco
Estado OBRA NUEVA
Tipo de suelo gres
Ascensor
Aire acondicionado
Zonas comunes
Calificación Energética En trámite

Calculadora de Hipotecas:

%
años

Inmuebles similares:

 
 175 m2  0  1
PISO EN 1º PLANTA Y UNICA GANDIA , ZONA SAN PERE
130.000 €
 
 90 m2  3  2
✨ ¡Casi nuevo y listo para entrar a vivir! Oliva 

🛏 3 habitaciones
🛁 2 baños (uno en suite)
📐 90 m² construidos
🚗 Parking comunitario + trastero
📦 Amueblado y equipado
🛋 Cocina office, electrodomésticos incluidos
🌞 Orientación Este
🌬 Aire acondicionado + calefacción
📶 Ascensor, balcón, patio interior
💚 Eficiencia energética A

✅ Zona tranquila, bien ubicada, ideal para vivir todo el año.

📲 Pide más info o ven a visitarlo sin compromiso.








135.000 €
Solicita información

Si deseas más información sobre esta propiedad, por favor, rellena el formulario:

Contacto
Costa Royal Nieruchomosci
San Francisco de Borja 25
46702 – Gandía

oficina@tucasaespana.eu
Síguenos en:
RAICV 3677